11月初,“燕子说家装”栏目正式上线,受到了众多市民的关注。本栏目致力于为大家提供优秀的本土家装案例、实在的家装干货、独立家装设计师平台以及接受业主装修质量问题投诉曝光等。
美式风是时下瑞安家装市场中比较流行的装修风格,本期案例燕子特地挑选了一个比较有代表性的又很有设计感的案例,供大家参考。如果您对自家的装修足够自信,也可以拨打栏目热线:66888080,跟我们分享您家的装修,如果入选还能免费获得价值5000元的甲醛治理福利。
瑞安嘉宝锦园160平方米美式家装
让你第一眼就爱上它!
本期案例基本概况
地址:嘉宝锦园
家庭成员:两夫妻及孩子
建筑面积:160平方米
装修花费:55万元
装修风格:现代美式
朝向:南北
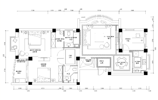
从本案的平面设计图上来看,可以看出设计师的巧思,他将功能区域划分得精确且功能齐全。针对女业主“衣服多”、喜欢收纳的特点,设计师增加了储藏室和更衣室。另外,这种U型厨房的设计,也非常实用,能够充分利用空间,扩大操作面积。
业主需求:
兼具住房的功能性与时尚性
本案是一家三口居住,男主人是一位企业家。在房间布局的要求上,特别提出需要两个卧室以及书房,不需要客房。同时在看过太多的奢华、富丽的装修之后,业主希望自己的家回归简约大方、温馨舒适。
整个居室奠定了柔和优雅的基调,大面积落地窗使阳光能够充分引入室内,素白的纱幔更是让整个空间增了一分浪漫气息。
素白墙纸融于餐厅的空间中,墙面不规则挂画,补充了素色的单调。餐桌上的白色花卉,沐浴着午后阳光的光景,这份柔情蜜意令人沉醉!
一走进客厅,映入眼帘的是少见的太阳造型的镜子,寓意着积极向上的正能量。长短不一的放射性线条,增加了空间的灵动感和穿透感。高冷灰的背景映衬着,恍若“守得拔云见日开”的幻景。
本案的卧室布置较为温馨,作为主人的私密空间,主要以功能性和实用舒适为考虑重点,运用温馨柔软的成套家具来装点。同时,用色上非常统一,以棕色、浅棕色、白色为主要色调,稳重大气,非常符合业主的企业家身份。
家,需要的是简单的归属感和安心感,置身其中感到全身放松。本案整体的设计,没有繁赘造型,每处尽显干净利落,恰恰诠释了人们的心里需求。
柒筑空间设计黄齐正、黄小影设计师
原来你的家可以如此简约大方
优秀家装征集
想秀一下你的家居品位?想高调晒出挑照,顺便把丰厚礼品领回家?
只要你觉得你家的装修风格足够独特,或者有有趣的家装故事想要分享,都可以联系燕子。
所有征集入选的小伙伴,都可获得价值5000元的甲醛治理一次(此福利由杉果装饰提供)。
投稿请将案例资料(包括业主的姓名与联系方式,案例的原始户型图、平面设计图、实景图等照片)发送电子邮箱至1509357158@qq.com。
联系方式:66888080








