大家期待的安阳城户型优化来啦!
你确定不来看看?
上周燕子发布时代柏悦户型讲解与优化方案后,市民反馈热烈!应市民要求,本周我们将加推华鸿安阳城的户型优化方案。
另外,本周日(8月26日)18:00,我们将在浙报电商园区(集贤路255号)为华鸿安阳城、时代柏悦以及其他要装修的业主,举办家装公益讲座,感兴趣的市民可以拨打电话66888080(工作时间)或扫一扫二维码添加燕子私人微信,回复电话姓名,即可免费报名。
讲座内容
1.专业收房与验房讲解
下半年,瑞安将迎来一大波交付潮。房子多了,难免会出现个别建筑问题,本次活动将带来专业的收验房流程、细节分享,现场更会送出30个专业验房名额!
2.户型优化方案讲解
户型优化可谓是硬装设计师基本功。届时,现场不仅有瑞安各大新盘的户型优化方案的深入讲解,更有多风格实景图搭配,给市民带来全方位的展示。
3.软装趋势与搭配讲解
活动现场将从温州邀请两位从事软装行业超过八年的专业软装设计师,为市民讲解近年来的软装趋势以及各个风格的软装搭配技巧。
4.专业灯光设计讲解
众所周知,灯光在装饰中的作用是其他装饰手法所不能取代的。本次活动,我们将邀请国家二级灯光照明师,为大家带来一次专业的装饰灯光分享。
现场福利
到场有礼:凡是到场的市民,以家庭为单位,每户送价值119元的金元宝一个。
整点抽奖:每个整点(19:00、20:00、21:00)抽奖,奖品分别为价值800元的蓝牙音箱、价值3980元的白云山空气净化器和价值3980元的3M净水器一个。
验房福利:活动现场送30个专业验房名额。
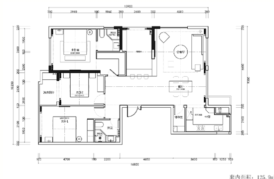
户型一
位置:安阳城9、15、17栋东边套 实用面积:125.9平方米
原始户型点评
优点:
1.视野开阔、光线充足,采光绝佳。
2.户型方正,尤其是格局方面,死角较少,空间利用率高。
3.公共空间实墙少,可塑性强,后期设计将有更多可变性。
4.各个卧室均朝南,光线充足。
缺点:
1.各主卧实墙较多,格局固化,可变性较小。
2.根据原始空间分布,局部空间会出现浪费。
3.该户型并未设计储物间,储藏空间不足。
户型优化方案
在空间效果方面可以用大块面统一的方式来体现效果与整体性。在光线充足的空间里以明暗强烈对比的方式来突出视觉冲击力,让空间更具灵动性。
局部空间以多动的形式来打造空间的趣味性。例如,在入户处设置水吧,既能充当玄关的作用,优化风水。又能在水吧下方设置储物柜,汇集办公、储物功能。此外,半开放的隔断形式,打开了公共空间,增加了空间的互动和扩大了空间视野范围。
电视背景墙一侧做开放式处理,连接榻榻米房和客厅。此处设置了台阶,可以踏步而上,平时孩子在榻榻米房游玩时,在客厅的父母也可以照料到,方便又实用。
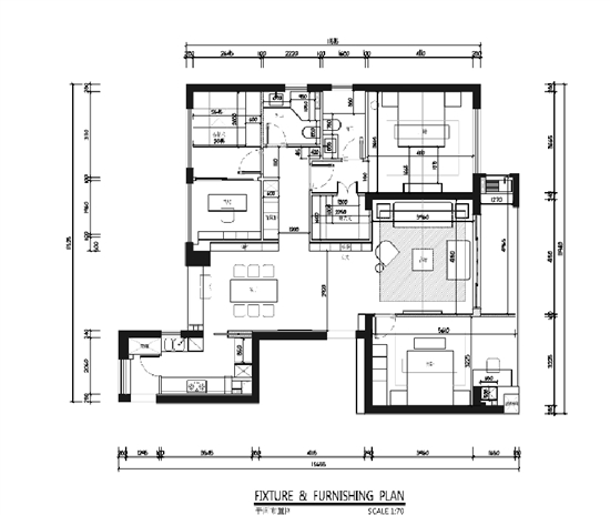
户型二
位置:安阳城7栋边套 实用面积:129平方米
原始户型点评
优点:
1.基本的4室2厅2卫,满足业主基本的使用功能。
2.户型南北通透,通风和采光条件上佳。
3.动静分明,原始卫生间一侧有窗,透气性较好,安排合理。
缺点:
1.厨房空间有限,电器尺寸的选择要注意。
2.北边的两个房间,空间功能定位模糊。
户型优化方案一
1.3个卧室满足了基本的功能需求,从收纳到功能布局,从色彩到材质,都做到整体的和谐。
2.入户门可见酒柜、玄关柜,整体格局十分协调。
3.过道的储藏柜满足生活杂物的收纳,其柜门的设计与酒柜、玄关柜为一体,体现了动区材质、色彩、细节点上,文化的统一。
4.餐厅的吧台丰富了用餐的基本态度,可在此调酒、与孩子做西点。夜晚来临时,于此地与爱人共赏良辰美景,妙哉美哉。
5.餐厅一侧的装饰画与过道尽头的摆件形成呼应,此举独具设计师的巧思。
6.榻榻米对门是书房,尽归榻榻米使用,方便前期小孩的游玩,后期转为学习区。
户型优化方案二
1.把过道打造得宽敞一些,在通往静区时,过道的艺术性将通过摆件、屏风、灯光等物品,来得到提升,使过道更具文雅韵味。
2.打开书房的房门,让整体的通风通风系统和客餐厅有更好的衔接,并且让过道的采光得到提升。
3.原先的过道为标准的1.2米,扩建为1.5米,在不影响空间的利用上,让过道变成十字形的中庭,使得整体空间更具韵味,这种手法更适合做新中式。
户型优化方案三
让书房与餐厅互动,打开原本局促的餐厅空间,让书房的文化与艺术气息融入餐厅,提升用餐体验感。旁边的休闲吧台、书房、餐厅形成一体,使得休闲、文化和用餐变得更有趣味性。
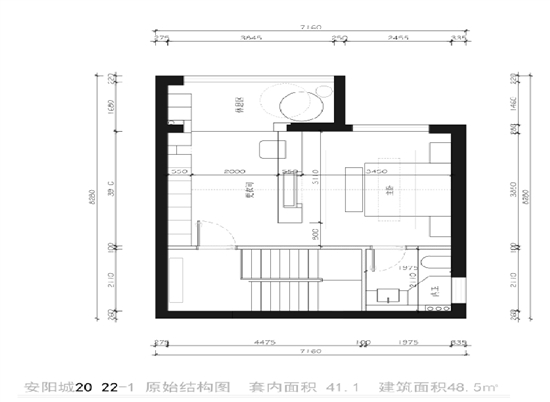
户型三
位置:安阳城20、22栋
实用面积:127.7平方米(一楼)+41.4平方米(二楼)
原始户型点评
1、原始户型餐厅与厨房偏小,功能划分不明确。
2、楼梯位置形成不了亮点,体现不了一个楼梯对跃层风格的加持作用。
户型优化方案
1、客厅、餐厅互通,餐厅的餐桌与吧台形成一体,即满足中西餐的用餐需求。
2、鞋柜与电视机连成一块,提升整体感,既显文化韵味,又显大气。
3、将矮梯扩大至客厅处,增加楼梯的延伸感,让楼梯融入客厅,在视觉上更有戏剧性。超大型的休息平台,既作为展示区,又可以作为孩子游玩区。
4、主卧进门口,先进更衣间,再进主卧,保留了主卧的私密性,电视背景墙与梳妆台的设计,保留使用功能的同时,又让空间更有延伸性。








