93平方米小户型竟能装成这样
3室2厅1厨2卫1阳台
基本信息
案例地址:华润悦府
案例面积:93平方米(实用面积)
案例风格:现代中式
装修造价:60万元
家庭成员:四口之家,父母、一双儿女(女儿20岁,男孩21岁)
装修时间:3年
小空间大利用
一踏进业主王女士的家,就仿佛沉浸在一个简单又有韵味的小世界里。王女士是这个家的女主人,塘下人,已到知天命之年,洗尽铅华,偏爱简单但又不失韵味的风格。这套房子原先是打算给儿子住,所以在中式风格中夹带一些现代之韵。
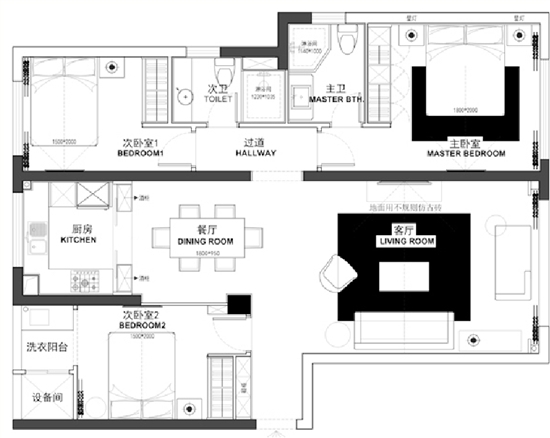
本案户型方正,南北通透,三面开窗,采光绝佳。且位于二十多层,通风性也好。缺点就是承重墙较多,空间格局已经定死,可变性很小。由于本案面积较小,稍有不慎就会沦为舒适度极差的鸡肋住房。
看到这套房子的装修,燕子很欣喜。如何将小空间做出大利的效果用,而且做到不拥挤,超有空间感,恐怕将是大部分市民装修的必备课程。
为此,燕子也特地向设计师取了取经,首先,公共空间最好做到少隔断,多沟通。
本案客厅和餐厨房串联起来的超大的公共空间,绝对让想不到她家竟是实用面积只有93平方米的小户型。
入户设计师也没有设占用空间的玄关,而是在走道尽头设置了装饰画。如此一来,入户既不会显得拥挤,仔细一看还有软装作为点缀。
其次,在装修色调上做到统一,本案以米灰色和深褐色为主要配色,且以浅色为主,深色为辅,视觉上更有延伸、扩展性。
最后,在架构上多运用具有延伸性的线条,扩展空间视觉感。墙面和顶面造型更是要有连贯性,使得空间更显干净、简洁、宽阔。
业主问答
您最喜欢哪个空间,为什么?
我最喜欢客厅和次卫。我家空间很小,能装出这样大的客厅,真的是出乎我的意料。而且空间通风采光极好,坐在客厅看外景感觉很舒适。
另外,我对家里的次卫也很满意。设计师将将两边的墙体打薄,次卫空间向两边扩出些许,用起来更加舒适。且次卫正好有窗户,通风采光都很棒。尤其是洗脸的台盆,选的是外扩的台面,既拓展了使用面积,又不影响走动。
这套房子装修下来,您有什么遗憾吗?
总体还挺满意的,不过也有有几个细节当时没考虑到,一个是飘窗,还有一个是客厅电视背景墙的颜色问题。装修的时候,设计师是建议选更浅一点的颜色,但是我当时没听设计师的建议,挺后悔的。在这里,我建议大家装修的时候多听听设计师的意见。
值得一提的是,我家装修时间很长,装装停停搞了三年,但是家装行业材料更新换代很快,现在新出的大理石,我喜欢也没办法换了。
最后,家里床的选择,我也挺遗憾的。温馨提示大家购买床要注意卧室长度,切勿买容易碰撞的款式。
本期主材清单
木门护墙板:乔金斯;橱柜:志邦;衣柜:欧派;瓷砖:博得;洁具:高仪;家具软装:今世家;灯具:欧普;开关:正泰;空调:三菱电机;门窗:德国墨瑟;地暖:曼德瑞
讲座来啦
想听听设计师亲自讲解本案的设计过程吗?你家是否也是小户型,想问问设计师如何优化利用吗?本期设计师分享会又一次如期而至啦!
讲座详情
主讲人:王绍橘
主讲内容:小户型的优化利用;本套案例流程分享
活动时间:9月1日(本周六)14:00
活动地点:隆山东路495号电信局一楼
报名方式:扫一扫二维码,添加燕子微信,免费报名。
(林跃)








