中交御墅户型优化:用设计给房子赋予灵魂
瑞安日报家装公益讲座开始报名啦
应中交御墅众多业主邀请,瑞安日报联合水木南山装饰公司为该小区的各大户型提供优化方案。此外,下周六(10月19日)18时30分,我们将在瑞安日报电商园区(集贤路255号)为中交御墅以及其他要装修的业主举办家装公益讲座,感兴趣的市民可以添加燕子的私人微信,回复电话姓名,参与报名。
楼盘概况
中交御墅由4栋高层、2栋洋房、8栋排屋组成,是瑞安近年来非常流行的“高低配”,和前段时间交付的“华鸿·瑞安府”相似度颇高。
该楼盘规模虽然不大(约450户),但是相比近期交付的德信·铂瑞湾、时代·柏悦等单一高层楼盘,它的户型种类更加多样,涵盖平层、跃层、排屋等类型。
本着“具体问题,具体分析”的原则,本期燕子将对跃层及平层的个别户型进行分析,而本文户型的更多方案,以及其他未涉及户型的优化方案,燕子将在下周六的家装公益讲座中为大家讲解。
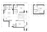
户型一
平层|101平方米|14幢中间套
户型点评
该户型为三房两厅两卫,一梯一户。户型比较方正,南面由大阳台、两个卧室和一个客厅组成。不过它的缺点也十分明显:左侧主卧和北侧次卧室门对门,不符合户型设计原理;客厅在两个卧室中间,动静不分离;入户大堂右侧有墙体,会在一定程度上影响南北通透与采光。
业主需求
本套业主为普通上班族,一家三口居住。考虑到实用面积相对较小,希望设计成“两个卧室+一个小的多功能间”的组合形式,让每个空间显得不那么拥挤。装修除了好看,更重要的是好用,所以空间的合理利用最为重要。
户型优化方案
针对业主的需求,设计师缩短了北侧次卧的长度,扩大两个卫生间面积。主卫的浴缸改为更实用的淋浴室,增加马桶与洗手台的操作面积。相比起“五角”淋浴室,四四方方的格局使用体验会更好,因此设计师在扩大次卫面积的基础上,将淋浴室改为长方形。
书房面积虽小,但“五脏俱全”,榻榻米的设置让书房的收纳能力提升了不少。此处也可以作为临时卧室,非常实用。
贴心的设计师还将每个功能区增加了储物柜,方便随手收纳。比如,餐厅处增加了柜体,可储物,也可摆放酒杯用于观赏。门厅一侧的走廊处,增加柜体,大大提升走廊空间的利用率。
厨房和边上小房间合并,扩大厨房面积。厨房用玻璃推门替代开门,保持室内整体空间的光亮通透感。
户型二
错跃|147平方米|11、12幢奇数层
户型点评
高层中,还有一种户型值得关注。位于11、12幢的错跃户型,即错层咬合。和其他错跃一样,第二层打造成了豪华独立的主卧套间。本户型的第一层拥有超长南侧大阳台。西侧为客厅、餐厨房等动区,东侧为三个卧室,动静分离。
但是纵观本户型,会发现这样的设计居住起来其实并不舒适。首先入户空间狭小,一进门给人一种小空间的压抑感。其次,客厅和卧室面积分配不合理,每个次卧的面积都相对狭小,客厅空间过大。位于楼梯一侧的走廊狭长,略有浪费空间之感,且楼梯两侧都为封闭的实墙,导致此处的采光较差。
户型优化方案
本套优化方案十分巧妙。将原本封闭的公共空间完全打开,首先是入户处,将墙体拆掉,用厨房的延伸高柜替代玄关墙,并增加储藏室,实现便利的入户收纳。
设计师最“鬼斧神工”的“一笔”是将次卧与客厅空间互换,扩大次卧面积,缩小客厅面积。同时,位于中部的客厅实现了与客厅、餐厅的连接,达到真正的南北通透。开放的空间也改善了楼梯的采光条件。
本方案使用体验最高的是餐厨房。设计师向南边“吃掉”一部分的次卧空间,将其改成多功能房,让出更多面积给餐厨房“发挥”。餐厨房完全打通,增加实用与美观兼具的吧台。
东侧的次卧赋予了它主卧的待遇,首先是将卫生间并入卧室,形成大套房。同时,向西侧的客厅“借”一个衣柜的宽度,做一个“顶天立地”的大衣柜。
为了满足业主对洗衣空间的诉求,将南侧大阳台一分为二,客厅一侧的阳台并入客厅,卧室一侧的阳台用开门隔断。业主可以直接从客厅一侧进入生活阳台,不会打扰卧室客人的休息。








