2娃家庭装“网红”北欧风
“简单”又实用
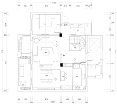
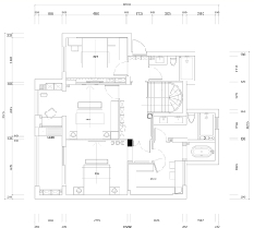
基本信息
案例地址:时代悦府
案例面积:220平方米
案例风格:北欧风
家庭成员:爸爸、妈妈、两个孩子
时下全国最流行的装修风格是什么?毫无疑问,北欧风一定首当其冲!北欧风虽火,但燕子发现在瑞安做得比较纯正的北欧风却少之又少。
本期,这套的北欧风集自然、通透、实用等优势于一体,在非常值得想尝试的业主借鉴。另外,本案业主有两个小孩,本套也考虑了实用性与人性化。
玄 关
业主戴先生对开放式空间的接受度非常高,公共空间几乎全部打通,包括入户玄关、客厅、餐厅和吧台。
巧妙的是,玄关与吧台虽然用鞋柜做了隔断,但鞋柜的中间采用了镂空处理。让此处更加灵动、开阔,从入户处望向吧台,别有洞天。
玄关采用了玻璃隔断,黑色的金属边框让玄关更具时尚质感。小块玻璃组成的玄关在造价上比大块的整体玻璃更低。
在之前的设计方案中,设计师原打算将地面鞋柜打造得更加低一些,让柜体兼具换鞋柜的功能。后来考虑到孩子还小,玩闹时穿过此处可能会碰到上方的柜体,便做了更加人性化的改动。
餐厨房
鉴于开放式厨房可能会有煤气泄漏的危险,厨房在封闭式的基础上选择了玻璃推门来增加空间通透性。
戴先生表示,他对厨房收纳特别看重,为此特地叫设计师增加了中岛。有别于其他案例的是,本案中岛的台面并非一样高,而是做成了“阶梯式”。高处的台面可以为低处台面上的杂物做遮挡,让台面的收纳不再受限。
本案的软装蕴含了业主戴先生的许多心血。家具、挂画、吊灯、餐边柜都是业主自己搭配的。
他总结了一套搭配心得,第一步:先去网上寻找自己喜欢的空间的照片,确立大概的模型;第二步:在网站搜索专门做该风格的品牌,最好线上线下都有开设门店;第三步:先去实体店观察成品,等到线上有活动的时候去购买。
另外,有些淘宝店铺里的软装是整套搭配好的,适合的话可以整套购买,免去后期自己搭配的烦恼。
客 厅
客厅的沙发颜色非常耐脏,这点是完全考虑到孩子的因素,便于日常打理。地毯选用了化纤毛毯而不是羊毛毯。
首先,羊毛地毯因为是动物毛,会有掉毛的问题,而且清洗也非常不便,必需干洗。另外,相比起化纤材质,羊毛地毯的价格基本上要贵一半。
客厅电视背景墙非常有特色,采用了文化砖的原料,有凹凸的质感。小块状最麻烦的地方,除了铺贴(小块砖头的的铺贴成本非常高,而且特别考验贴砖师傅的专业度),就是美缝。此处文化砖之间的缝隙既多又宽(比正常的宽度宽出了一倍多)。
客厅边的飘窗是业主最喜欢的一处空间,也是设计师的得意之作。因为外墙的窗台较高,就算将飘窗并入客厅,高窗台的硬装也不太雅观,索性将此处开辟为集休闲与收纳为一体的飘窗。
儿童房
双层床的设计特别适合好动的孩子,爬上爬下,趣味十足。把阳台并入儿童房,延伸了生活功能,打开了儿童房的采光与面积。
业主问答
问:作为两个孩子的家长,有哪些地方的装修是为孩子考虑的?
答:跃层的业主最怕的事情就是孩子不小心从楼梯上摔下来,为此,我特地在二楼楼梯的出口处增加了护栏。
问:装修过程中,哪块的费用是最出乎意料的?
答:为了美观,我家的卫生间、厨房还有客厅背景墙都是采用小砖铺贴。小砖不仅耗费人工,更加耗费经费,全屋光是铺贴费就花了两万多。
想了解本案的更多细节吗?想和本案设计师面对面沟通吗?本周六,燕子将邀请包括本案设计师在内的瑞安专业设计师为大家带来家装公益讲座,有意向的市民可以扫描图中二维码,添加燕子微信,回复姓名电话,参与报名。









