瑞安华府176平方米新房装修
都市英伦风,处处透着贵族气质
本期要和大家分享的这套家装案例,令人想起了那些风靡一时的英剧。
英剧里的家,客厅的壁画、精致的沙发,搭配暗色系印花地毯,宛若一位18世纪的翩翩贵族,低调、华贵,充满气质。
而要将这样一个需要时间沉淀的英伦复古气质,复制到现代家装里,着实不易。瑞安华府这套176平方米都市英伦风设计,在传承古典之美的同时,融入现代生活空间元素,呈现出别具一格的新意,处处透着贵族气质。
基本信息
案例地址:华鸿瑞安华府
设计公司:梧城设计装饰工程有限公司
实用面积:176平方米
设计风格:都市英伦风
硬装费用:约92万元
家庭组成:年轻夫妻及女儿
本案部分材料品牌
①皇家本色木作
②美兰瓷砖
③《寐·家居》床品
④凤凰社软装
⑤司友厨柜
⑥环美格雷西家具
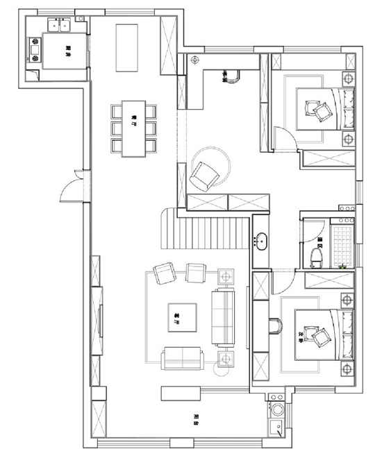
平面设计
本套房源位于华鸿瑞安华府,是一套错跃户型。一楼整体布局动静分区,舒适度较高。在业主同意下,设计师牺牲掉一个卫生间,做了一个休闲角,只为让光和风,更肆意地从南、北、东、西穿行,为整个空间增添一份灵动。而保留下来的一个卫生间,也做了双分离的设计,可以保证有人在如厕或者洗澡的同时,外面的人还是可以用洗手台洗漱。
总体来看,一楼设计了两个次卧,一个书房,外加餐客厅、大阳台,基本功能齐全;二楼是常规的豪华独立主卧,衣帽间、独立卫浴、梳妆台休闲区等一应俱全。
设计特点
客厅
湛蓝色的英伦风木作,固然气质高贵,却易流于守旧沉闷,于是客厅设计在传统的维多利亚线型之中,加入休闲的木百叶,有强烈中世纪特征的黑色铁艺造型,气氛轻松的酒架,使单一色彩的木制品因符号的故事性变得丰富多元。
完成主题之后,撞以大面积美丽的白色石材,尤其是典雅的白色雕花壁炉,蓝白的交响,让空间时尚而明快。
餐厅
餐厅同样采用大量蓝色英伦木作风家具,除了圆形餐桌,设计师还在窗边做了一个岛台。岛台除了平常的装饰美观作用,还可以充当料理台,当客人多的时候,也可以当备餐台。
岛台一旁就是蒸箱、烤箱,食物新鲜出炉后可以第一时间放置于此。岛台下方做了柜子,与其它餐厨柜一起,大大提升了整个餐厅的贮藏功能。
书房
书籍是提升房屋气质的必备物品。在这套案例的书房里,明窗净几,湛蓝色的英伦风木作,大到可容纳下一家人共用的大书桌,以及旁边触手可及的一整面书架和书柜,营造出浓浓的书香气息。
蓝色复古的木作,衬着一面白墙,搭配几幅新古典画框的油画,如此徜徉在书籍的海洋里,和古人、今人来个思想碰撞;也可以在周末的休闲时光,和家人在这里喝喝茶,感受平淡生活里的幸福。
主卧
二楼的主卧,首先映入眼帘的是床的背景墙纸。墙纸与一旁的蓝色木作、休闲椅、床靠背颜色,搭配和谐统一,完美诠释着英伦复古风的高级气质。步入式衣帽间,衣柜门的线条、把手很有质感。梳妆台,搭配一张原木色树桩凳,与地板颜色遥相呼应。
次卧
本套案例有两个次卧。一个是带飘窗的客卧,飘窗延续了蓝色的英伦木作风格,下方设计有储物柜,上方还有小型书架,搭配彩色抱枕,营造出非常舒适的休闲一角。
另一个用作女儿房,以粉色、白色、浅蓝作为主色调,同时放置书桌、书架,兼具少女浪漫与学习氛围。












