本期给大家带来的这套案例,来自名瑞装饰的设计师赵乐舟。
房屋位于时代悦府,是一套面积约308平方米的叠墅。业主自身喜欢中式,子女喜爱美式,设计师结合两代人的喜好,设计了新中式风格,既体现高颜值的中式韵味,满足长辈的传统中式情结,又容易被年轻人接受。
融合了美式风格的自然淳朴,又有圈椅、茶室等经典中式元素,十步一景的禅意感,让中式的“魂”贯穿始终。下面,一起来看看这个堪称中式教科书的家吧……
基本信息
案例地址:时代悦府
使用面积:308平方米
设计风格:新中式
房屋间隔:4室2厅5卫
设计公司:名瑞装饰
装修费用:约180万元
平面设计
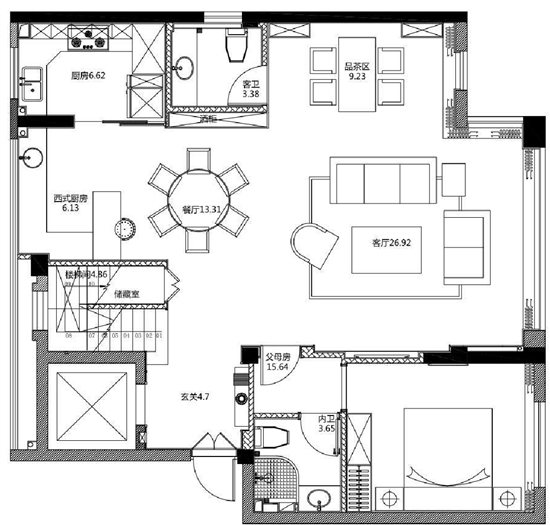
本案坐落于时代悦府洋房区,3带4的上层叠墅,赠送一个顶楼空间,规划4个带独立卫生间的套房卧室,私密性极佳。
一楼是主要的活动区,客厅+品茶区面积约36平方米,除了中式厨房,还设计了一个L型西厨,在圆桌边搭配西式岛台,中西合并,满足老中青三代人的饮食习惯。厨房边楼梯下做了一个储藏室,充分利用空间,一楼还额外隔出一个次卧。
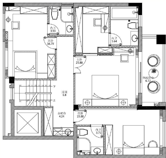
二楼是主要的生活区,三个独立套房卧室,做到了两朝南,采光、日晒得到充足保障。二楼还贴心地设计了一个水吧,让业主大部分生活需求直接在二楼完成,不需再跑去一楼,省心省力又确保私密性。
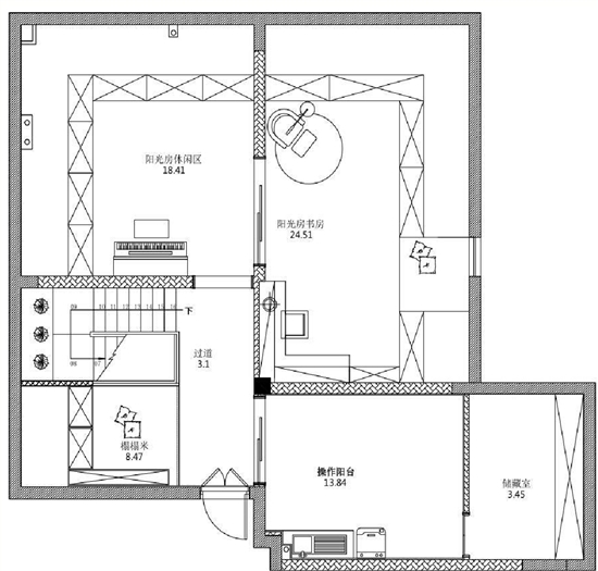
三楼是顶楼,带有斜角,部分层高略矮一些,设计师在此规划了儿童游乐区、阳光书房和生活阳台,晾晒衣服、种花养草等都非常适宜。
玄关
入户就足够惊艳每一位来访的客人,进门的水墨装饰画起到了玄关的效果,简单的布置,线条利落干净,打造出雅致优美的意境,体现东方美学。
客厅
朝南的大客厅,拥有270°超大采光面,业主喜好茶文化,特意在客厅沙发后方打造了一个开放式茶室。新中式的布局,讲究空间的对称以及层次感,茶室背景墙用几笔水墨勾勒出中式的意境禅意,原木色茶桌+两侧对称书柜,使整体空间张弛有度。
一张大地色皮质主沙发,搭配两张改良版的圈椅和一张极富造型感的蓝色单人沙发,与富有层次变化的圆形茶几,构成了会客区,实用的材料,古色古香,中式风格浓郁的同时,又给人一种现代感以及品质感。
茶室书架上的古木、石雕艺术摆件,装饰效果极强,通过中式风格摆件来呈现静谧的禅意空间,这也很好地满足了家里长辈对清雅含蓄、古典端庄的追求。
餐厅
餐厅选用橡木色桌椅,时尚大气。开放式餐边柜能很好地收纳居家物品,更装饰了墙面,美观又实用。中式花艺摆件是点睛之笔,端正稳重,中式韵味十足。
餐厅与厨房之间做黑色边框玻璃隔断设计,与餐厅整体风格和谐统一,为厨房带来光线的同时,也能防止厨房油污侵袭餐厅。
卧室
主卧空间上讲究层层递进,整体色调清浅淡雅,各种线条造型都尽量简单,看似简约的空间却尽显品质感。
其中一个次卧,业主特意购买了一张梨花木材质的床,背景墙上以一幅淡雅的水墨画做装饰,搭配古色古香的灯饰,中式意境脱颖而出。
而另一个卧室,在整体风格设计上,融入了多彩色,更符合年轻人的喜好。富有活力的色彩搭配,与简约顶面及定制收纳柜搭配,显得清爽干净。床头定制衣柜,一柜到顶,不留卫生死角,更轻松扩容,主人的衣物、换季的被褥都可以轻松收纳。
休闲区
本案特意在顶楼打造了一个儿童游乐区,没有做多余的设计和装饰,四周的柜子用以收纳玩具。另外还安排了一个书房,闲暇时在此看书观影,享受绝对私密的空间,可以静静地徜徉在精神的世界里,远离外界纷扰。
设计特点
(彭丽明)










