今天给大家介绍的这套作品,来自瑞安融社装饰。
本案融合东方哲学与现代美学,在有意与无形、轻灵与淳厚的邂逅中,切入一个舒适、朗澈、归真的人文精神空间,创造出新的质地生活美学。
本案位于塘下中心区,屋主一家四口,一儿一女,对室内空间质感,装饰材料以及细节等方面极度讲究。因此,本案全屋没有瓷砖,采用的都是大理石和实木,因此呈现出十分大气和厚重的感觉。
房屋信息
案例地址 : 碧桂园天玺
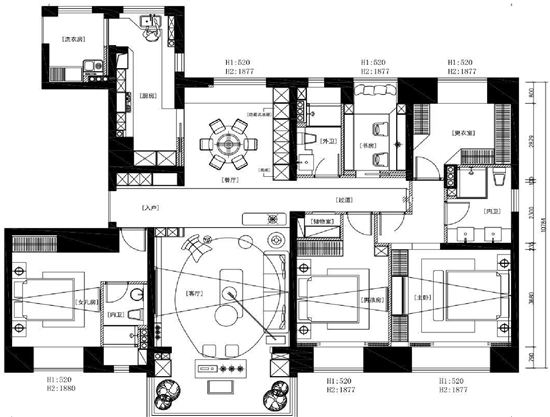
建筑面积 : 201平方米
房屋间隔:3房2厅3卫1书房
家庭成员 : 一家四口
设计公司 : 瑞安融社装饰
本案建筑面积201平方米,套内实际使用面积约175平方米,原户型结构承重墙较多,布局较为固定,设计师在装修时并没有做过多改动,而是将重心放在一些细节设计上。
根据女主人的需求,将北向一个次卧改为衣帽间,扩大了主卧的使用空间。同时,打通南向客厅阳台,做开放式茶室,既拓展客厅面积,又提升了客厅文化气韵。
除了主卧,女儿房也设有独立卫生间。厨房将部分电器外置,腾出更多的下厨空间,餐厅的储物柜则增加了不少收纳空间。
设计特点
玄关
玄关的设置带来序幕拉开的层次感,地面采用几何拼接的实木地板,设计师以暖色灯光线条勾勒空间,映触着一石一木堆砌的天然材质,带有独特的水墨之美,不但表现出东方“禅”的哲学,也透露出文人慵懒、儒雅的一面。积淀深厚的历史文化与现代时尚的都市格调,就此完美融合,相得益彰。
客厅
客厅中没有过于抢眼的造型,亦没有浓墨重彩的渲染,而是以最经典的现代设计笔触,令木质、皮革、石材等所有元素和谐共处。灯带的设计,让空间不仅增添了一种低调的高级感,也带来了无限的品质感。
茶室配以高度的微妙变化,使得其与客厅融会贯通的同时,又互相独立。茶桌造型阔绰大气,提升了空间的张力。水吧台延续客厅的设计语言,产生空间关联性,营造秩序之美。
餐厅
颇具水墨意境的大理石,构筑成餐厅的用餐基调,显得干净利落又大气。白色开放式餐边柜,不仅能很好地收纳居家物品,更装饰了墙面,美观又实用。墙面的钟摆极具特色,表达出人文现代的生活态度。
餐厅与厨房之间用了黑色边框玻璃做隔断,与餐厅整体风格统一,为厨房带来光线的同时,也能防止厨房油污侵袭餐厅。
主卧
主卧空间以材质的质感、纹理,表现出复古感,返璞归真的设计及沉静内敛的色调搭配,让人不自觉地静下心来。主卧空间中的亮点就是设计师运用抽象概念呼应中式元素的细节。床面背影为花纹曲线设计,象征着云雾环绕;木色的点缀象征着山林叠嶂。
此外,飘窗的休闲布置,电视机背景墙“纯白+木色”的搭配,在厚重中融入一丝轻盈,体现了美学中的“虚实结合”。
次卧
业主家中一儿一女,各有自己的居住诉求,每个次卧均为量身打造。
男孩房没有过多的装饰,以白色的背景墙和墨绿色的床背相连接,打造出一个温暖而富有安全感的睡眠空间。
女孩房则采用粉色系,使房间洋溢着温馨可爱。






